Apartamento en Centro, con 41 m² construidos, 33 m² útiles, 1 dormitorios, 1 baños, 1 garaje/s, estado de origen, exterior, planta Baja, cocina semi amueblada, trastero, entre 15 y 20 años, calefacción individual, energía calefacción eléctrica, agua caliente individual, energía agua eléctrica
SE VENDE VIVIENDA ALQUILADA, IDEAL PARA INVERSORES!!!
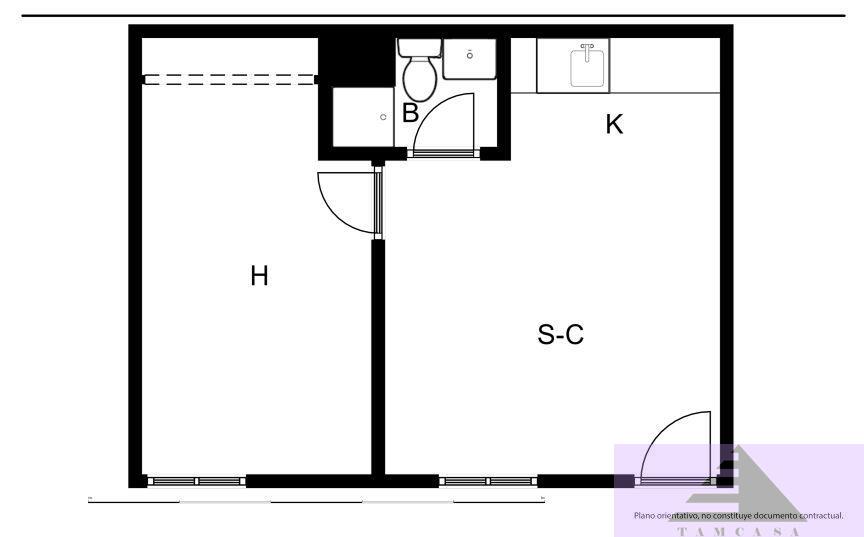
Piso con una superficie de 33 m² útiles de 1 dormitorio, ubicado en la localidad de Aranjuez, provincia de Madrid.
Construido en 2010, este piso tiene una superficie de 33 m² y se distribuye en salón-comedor, 1 dormitorio, cocina amueblada y equipada con horno, vitrocerámica y campana extractora y 1 baño.
Buenas calidades en el interior de las viviendas, armarios empotrados, calefacción.
Incluye una plaza de garaje situada en la planta primera del sótano y trastero en la misma planta.
Información sobre la propiedad en alquiler: La vivienda se encuentra actualmente alquilada a precio de mercado, con inquilinos solventes que cuentan con empleo fijo y nómina, abonando la renta de manera puntual y regular. Detalles del contrato: Renta mensual actual: 596,59 €
Importante: Dado el estado ocupacional de la propiedad, no es posible realizar visitas.
SIN COMISIONES DE AGENCIA!!!
Solicite más información sin compromiso.
